5 locali in vendita

Santo Stefano Di Magra, Via Chiesa - Ponzano Superiore
€ 35.000
5 locali 5 locali
94 Mq 94 Mq
1 bagno 1 bagno

5 locali in vendita

Santo Stefano Di Magra, Via Chiesa - Ponzano Superiore

Descrizione annuncio

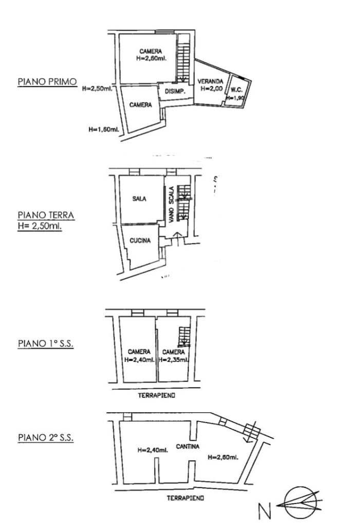
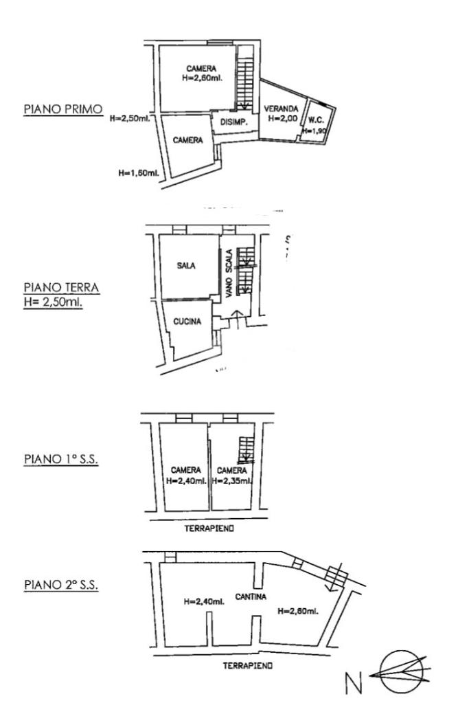
Ponzano Superiore – Nel suggestivo borgo storico, caratterizzato da tranquillità e scorci tipici della zona, proponiamo terratetto di ampia metratura disposto su più livelli.

L’immobile si sviluppa con ingresso al piano terra dove troviamo la zona giorno composta da soggiorno e cucina separata, ambienti che, con un intervento di ristrutturazione, possono essere valorizzati e resi moderni e funzionali.

Al piano superiore si sviluppa la zona notte con due camere da letto matrimoniali, entrambe di generose dimensioni, ideali per garantire comfort e vivibilità.

Scendendo al piano sottostante rispetto al piano terra, troviamo ulteriori due vani attualmente allo stato grezzo, con la possibilità di essere trasformati in ulteriori camere, studio o zona relax a seconda delle esigenze.

Ad un livello ancora inferiore è presente una doppia cantina, anch’essa allo stato grezzo, ideale come spazio accessorio oppure da recuperare e valorizzare.

L’intero immobile si presenta completamente da ristrutturare, rappresentando quindi una soluzione ideale per chi desidera personalizzare ogni ambiente secondo il proprio gusto, sfruttando al massimo le potenzialità degli spazi e la tipicità della struttura.

Grazie alla disposizione su più livelli e alla metratura complessiva, l’immobile si presta sia come abitazione principale per famiglie, sia come investimento per realizzare una soluzione ricettiva o da mettere a reddito.

Nell’annuncio sono presenti dei rendering a scopo puramente illustrativo, realizzati per mostrare una possibile ipotesi di ristrutturazione e valorizzazione degli ambienti.

Mostra tutto

Nelle vicinanze

Trasporto pubblico Trasporto pubblico
Santo Stefano di Magra
Santo Stefano di Magra
2,4 Km
Trasporto pubblico
130 m
Direzione Aulla Santo Stefano Ingresso A
Direzione Aulla Santo Stefano Ingresso A
2,1 Km
Scuole Scuole
Scuola Elementare "Enrico Fermi"
2,3 Km
Farmacia Farmacia
Parafarmacia Conad
2,3 Km
Farmacia Salvan
2,4 Km
Supermercati Supermercati
Supermercati
2,1 Km
Conad
2,3 Km
Negozi Negozi
Valerio's Bakery
2,4 Km
Bar Bar
Nuovo Punto e Virgola
2,1 Km
Bar
2,4 Km
Bar Moderno
2,4 Km
Ristoranti Ristoranti
Agriturismo Azienda Agricola Monte Bianco
2,2 Km
Ristoranti
2,4 Km
La Tana del Riccio
2,5 Km
Il Borgo
2,5 Km
Trattoria pizzeria Il contado
2,9 Km
Mostra tutto

Caratteristiche

Rif.:
61195184
Piano:
1 di 3
Camere da letto:
2
Arredamento:
Assente
Condizionamento:
Assente
Ascensore:
No
Mostra tutto
Prezzo Prezzo
€ 35.000
Rata mutuo Rata mutuo
€ 165 / mese
Spese annue Spese annue
€ 0
Proponi il tuo prezzoProponi il tuo prezzo
Immobile valutato con T·Valuta

Classe Energetica

Questo immobile è esente da classe energetica
Anno di costruzione:
1960
Riscaldamento:
Assente

Ti interessa visionare l'immobile?

Fissa un appuntamento  Fissa un appuntamento

Richiedi informazioni

Clicca su Leggi per aprire l'informativa
* Questi campi sono obbligatori

Calcola il tuo mutuo

Semplice e senza impegno
Anticipo

( % )
Mutuo

( % )

pochi semplici passi

inserisci i tuoi dati
Questionario completato
Grazie per aver richiesto un appuntamento senza impegno con un nostro Consulente del Credito e Assicurativo.

Hai inserito correttamente tutti i dati necessari e a breve riceverai una e-mail con un link da convalidare per inviare i tuoi dati.
Affiliato
Studio Santo Stefano Srl
Via Cisa Sud, 320 19037 Santo Stefano Di Magra (SP)

Il nostro staff


  • Alessia Bertonati
    Coordinatrice

  • Giada Tenerani
    Affiliata
Via Cisa Sud, 320 19037 Santo Stefano Di Magra (SP)
Zona: Santo Stefano di Magra-Arcola-Vezzano Ligure
Mostra su mappa
Affiliato
Studio Santo Stefano Srl
Via Cisa Sud, 320 19037 Santo Stefano Di Magra (SP)

2026 Tecnocasa Franchising S.p.A. - P. IVA 08365160152 - Via Monte Bianco 60/A 20089 Rozzano (MI). Ogni agenzia ha un proprio titolare ed è autonoma. Privacy policy | Policy utilizzo | Cookie policy